プロスピリティー鷹合2丁目(土地 東住吉区鷹合)
Concept
コンセプト- 2区画分譲
- 2沿線利用可能
- 閑静な住宅街
- 景観の美しい長居公園近く
- 6mと8mのゆとりある道路幅員
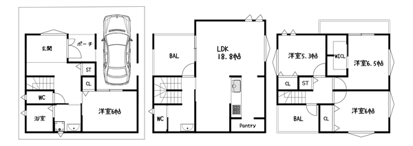
- 圧倒的な広さの玄関!ベビーカーやゴルフクラブもたっぷり収納
- キッチンにはパントリー!災害時の備蓄庫として活用
News
ニュース現地、更地になりました
Access
アクセス最寄駅:近鉄南大阪線「針中野」駅 徒歩13分 御堂筋「長居」駅 徒歩18分
周辺の施設
Outline
物件概要| 物件No. |
|---|
おすすめポイント
広々とした角地
6mと8mのゆとりある道路幅員
● 所在地・交通・学区
| 所在地 | 大阪市東住吉区鷹合3丁目 |
|---|---|
| 最寄駅 | 近鉄南大阪線「針中野」駅 徒歩13分 御堂筋「長居」駅 徒歩18分 |
| 校区 | 大阪市立鷹合小学校 大阪市立中野中学校 |
● 物件詳細
| 土地権利 | 所有権 | 間取り | 3LDK |
|---|---|---|---|
| 地目 | 宅地 | 接道状況 | |
| 駐車場 | 有 | 建物階数 | 3階建て |
| 建ぺい率 | 60 | 容積率 | 200 |
| 用途地域 | 第二種中高層住居専用地域 | 都市計画 | 市街化区域 |
● 土地・建物
| 土地面積 | 64.89㎡~70.60㎡ | 建物面積 | 110.16㎡~115.02㎡ |
|---|---|---|---|
| 私道面積 | 構造 | 木造 | |
| 築年月・完成予定 | 令和8年6月予定 | 現況 | 更地 |
● 設備
| ガス | 都市ガス | 電気 | 関西電力 |
|---|---|---|---|
| 上水道 | 公営水道 | 下水道 | 公共下水 |
● 取引条件等
| 引渡時期 | 相談 | 取引態様 | 媒介 |
|---|
● その他
| 備考 |
|---|
.jpg)





1号地_R.png)
1号地_R.png)
1号地_R.png)
1号地_R.png)



